• 91免费福利网站,91免费观看网站,91免费在线播放视频,91免费看黄视频下载

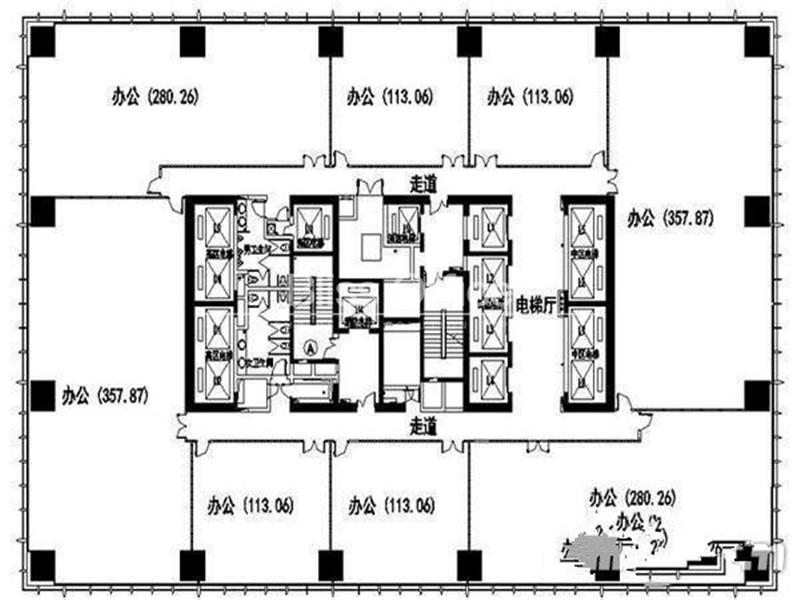
    汇亚大厦写字楼整层2390方标准交房

    分享
    79.97 万元/月
    • 单价:11.0元/㎡/天
    • 物业费:42.0元/㎡/月
    2390㎡
    建筑面积
    250-300人
    容纳工位
    标准交房
    装修
    • 浦 东-陆家嘴
    • 2号线-陆家嘴、14号线-陆家嘴
    • 汇亚大厦

    房源专属顾问为您服务

    杨亦晗Cassie

    13167276699
    预约看房

    公共交通

    Public transit

    汇亚大厦

    浦 东陆家嘴陆家嘴环路1233号

    网站地图