陆家嘴
浦 东-陆家嘴环路1233号
2号线-陆家嘴、14号线-陆家嘴


In Tenant Type
Building photos
Building introduction
写字楼
2390平
37层
70%
2005年
世邦魏理仕
31.6元
2.8米
VAV中央空调系统
客梯14部,货梯2部
地下340个
是
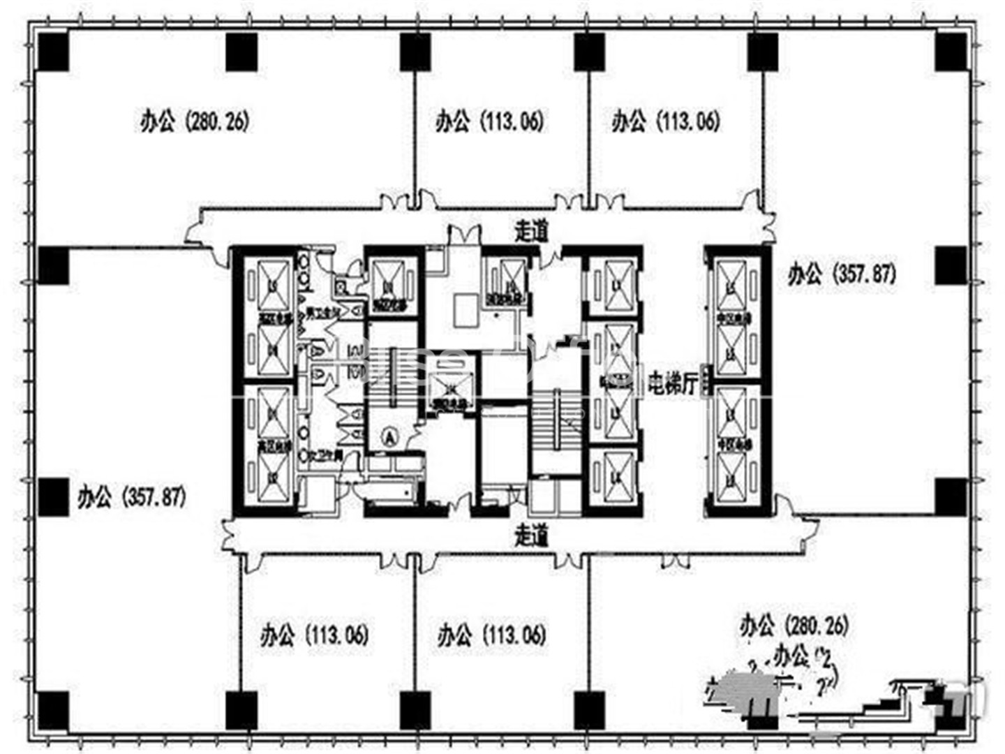
汇亚大厦地上33层、地下4层,标准层面积2390平方米,层高2.8米。

上海汇亚大厦位于陆家嘴核心陆家嘴环路1233号,距离2号线陆家嘴站1号口大概步行5分钟左右。旁边是平安金融大厦,上海银行大厦,和富士康大厦。
但是上海汇亚大厦是很低调的,低调到你可能去了一趟陆家嘴但是你可能都察觉不到陆家嘴还有这么一栋楼叫汇亚大厦。但是汇亚大厦还是凭着其过硬的基础设施赢得了众多外资租客的入住,比如说恨得外资银行。
上海汇亚大厦目前只租不售,开发商对外招商过程中有对租客的资质审核条件,汇亚大厦大业主对外租金报价12-13元/平/天,物业费是42元/平/月。主力户型都是300方左右,偶尔也有150方的小户型出来,房源特别少,一出来就会被定掉。
Public transit
浦 东陆家嘴陆家嘴环路1233号

How To Commissin Bliss Office
