• 91免费福利网站,91免费观看网站,91免费在线播放视频,91免费看黄视频下载

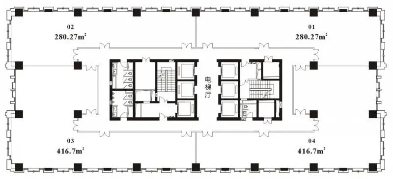
    长泰企业天地广场300平标准交付户型,可以订制装修

    分享
    4.11 万元/月
    • 单价:4.5元/㎡/天
    • 物业费:30.0元/㎡/月
    300㎡
    建筑面积
    20-30人
    容纳工位
    标准交房
    装修
    • 闸 北-西藏北路
    • 10号线-天潼路、12号线-天潼路
    • 长泰企业天地广场

    房源专属顾问为您服务

    徐佳乐Jerry

    13052210023
    预约看房

    公共交通

    Public transit

    长泰企业天地广场

    闸 北西藏北路海宁路899号

    网站地图