• 91免费福利网站,91免费观看网站,91免费在线播放视频,91免费看黄视频下载

    兆丰广场 精装修房源出租 拎包入驻

    分享
    5.19 万元/月
    • 单价:6.2元/㎡/天
    • 物业费:22.0元/㎡/月
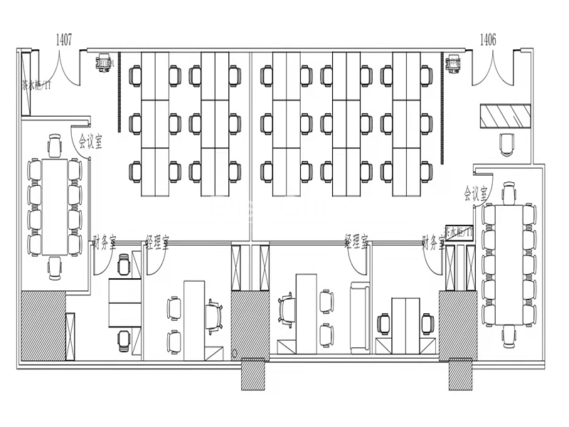
    275㎡
    建筑面积
    20
    容纳工位
    带装修家具
    装修
    • 长 宁-中山公园
    • 2号线-中山公园、3号线-中山公园、4号线-中山公园
    • 兆丰广场

    房源专属顾问为您服务

    杨亦晗Cassie

    13167276699
    预约看房

    公共交通

    Public transit

    兆丰广场

    长 宁中山公园长宁路1027号

    网站地图