• 91免费福利网站,91免费观看网站,91免费在线播放视频,91免费看黄视频下载

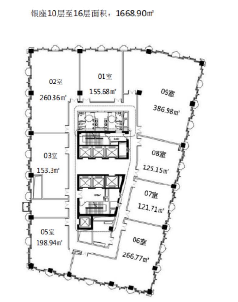
    永丰国际广场整层1668平,土豪客户300万豪装,高配行政卫生间、厨房一应俱全

    分享
    40.08 万元/月
    • 单价:7.9元/㎡/天
    • 物业费:33.0元/㎡/月
    1668㎡
    建筑面积
    100-300人
    容纳工位
    带装修家具
    装修
    • 徐 汇-徐家汇
    • 1号线-徐家汇、9号线-徐家汇、11号线-徐家汇、7号线-肇嘉浜路
    • 永丰国际广场

    房源专属顾问为您服务

    江帅军Evan

    13052210023
    预约看房

    公共交通

    Public transit

    永丰国际广场

    徐 汇徐家汇 宛平南路88号

    网站地图