• 91免费福利网站,91免费观看网站,91免费在线播放视频,91免费看黄视频下载

    古北商圈,东银中心出租稀少213方户型,高岛屋旁

    分享
    5.83 万元/月
    • 单价:9.0元/㎡/天
    • 物业费:33.0元/㎡/月
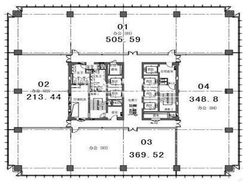
    213㎡
    建筑面积
    20-40人
    容纳工位
    标准交房
    装修
    • 长 宁-虹桥古北
    • 10号线-伊犁路
    • 东银中心

    房源专属顾问为您服务

    杨亦晗Cassie

    13167276699
    预约看房

    公共交通

    Public transit

    东银中心

    长 宁虹桥古北红宝石路500号

    网站地图