• 91免费福利网站,91免费观看网站,91免费在线播放视频,91免费看黄视频下载

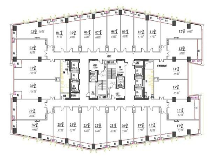
    解放日报大厦,600平标准交付,电梯口,可分割多种面积

    分享
    10.40 万元/月
    • 单价:5.7元/㎡/天
    • 物业费:28.0元/㎡/月
    600㎡
    建筑面积
    50-80人
    容纳工位
    带装修家具
    装修
    • 黄 浦-南京东路
    • 2号线-南京东路、10号线-南京东路
    • 解放日报大厦

    房源专属顾问为您服务

    徐佳乐Jerry

    13052210023
    预约看房

    公共交通

    Public transit

    解放日报大厦

    黄 浦南京东路汉口路300号

    网站地图