• 91免费福利网站,91免费观看网站,91免费在线播放视频,91免费看黄视频下载

    浦江国际金融广场出租440方精装适合金融

    分享
    10.04 万元/月
    • 单价:7.5元/㎡/天
    • 物业费:38.0元/㎡/月
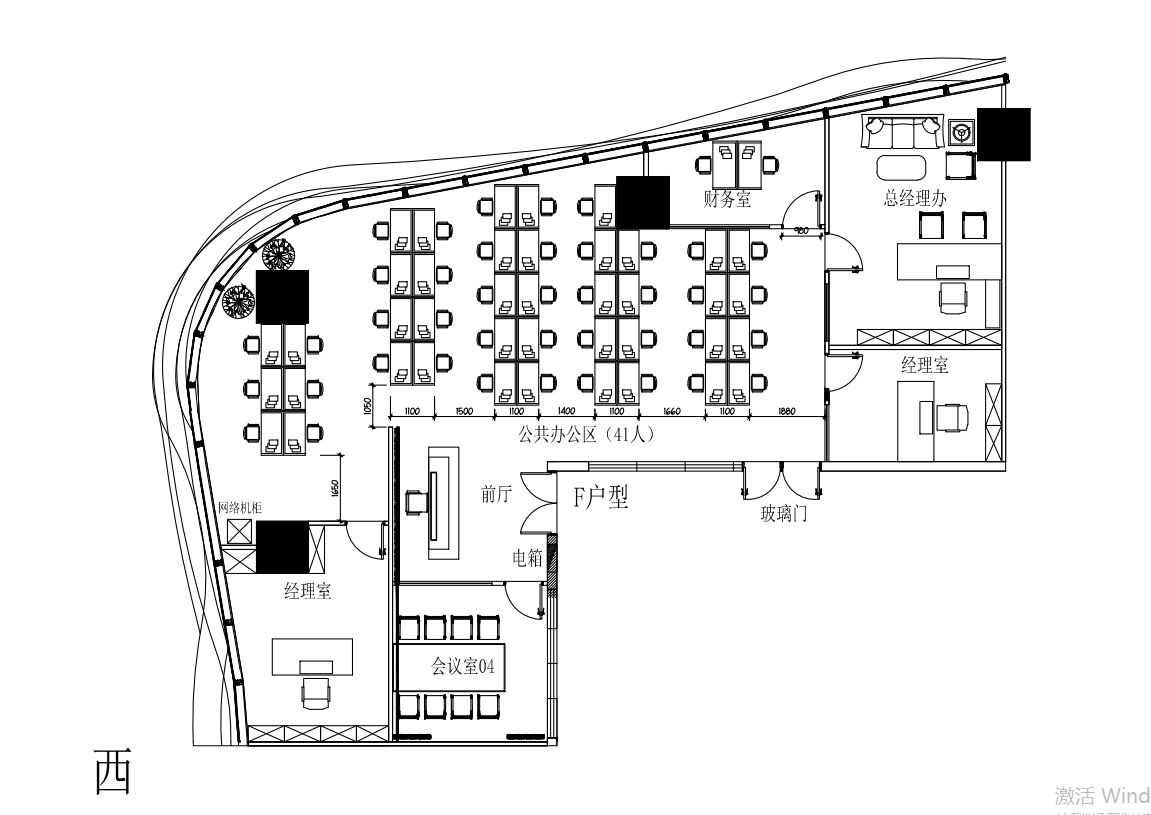
    440㎡
    建筑面积
    40-60人
    容纳工位
    带装修家具
    装修
    • 虹 口-北外滩
    • 12号线-提篮桥
    • 浦江国际金融广场

    房源专属顾问为您服务

    徐佳乐Jerry

    13052210023
    预约看房

    公共交通

    Public transit

    浦江国际金融广场

    虹 口北外滩东大名路1098号

    网站地图