• 91免费福利网站,91免费观看网站,91免费在线播放视频,91免费看黄视频下载

    环球都会广场899.5方标准交房三面采光看黄浦江

    分享
    16.43 万元/月
    • 单价:6.0元/㎡/天
    • 物业费:35.0元/㎡/月
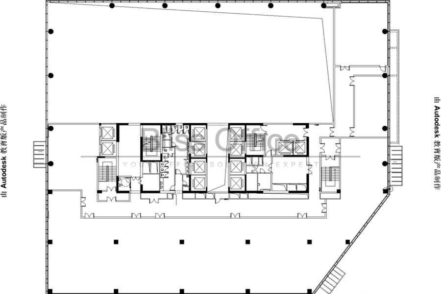
    900㎡
    建筑面积
    80-100人
    容纳工位
    标准交房
    装修
    • 浦 东-前滩后滩
    • 7号线-后滩
    • 环球都会广场

    房源专属顾问为您服务

    杨亦晗Cassie

    13167276699
    预约看房

    公共交通

    Public transit

    环球都会广场

    浦 东前滩后滩耀元路58号

    网站地图