• 91免费福利网站,91免费观看网站,91免费在线播放视频,91免费看黄视频下载

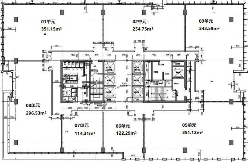
    莘庄旭辉中心883方半层对电梯口自由装修

    分享
    11.82 万元/月
    • 单价:4.4元/㎡/天
    • 物业费:28.0元/㎡/月
    883㎡
    建筑面积
    80-100人
    容纳工位
    标准交房
    装修
    • 闵 行 -七莘路
    • 12号线-七莘路
    • 旭辉莘庄中心

    房源专属顾问为您服务

    江帅军Evan

    13052210023
    预约看房

    公共交通

    Public transit

    旭辉莘庄中心

    闵 行 七莘路秀文路靠近园秀路

    网站地图