新天地
卢 湾- 马当路388号
10号线-新天地、13号线-新天地


In Tenant Type
Building photos
Building introduction
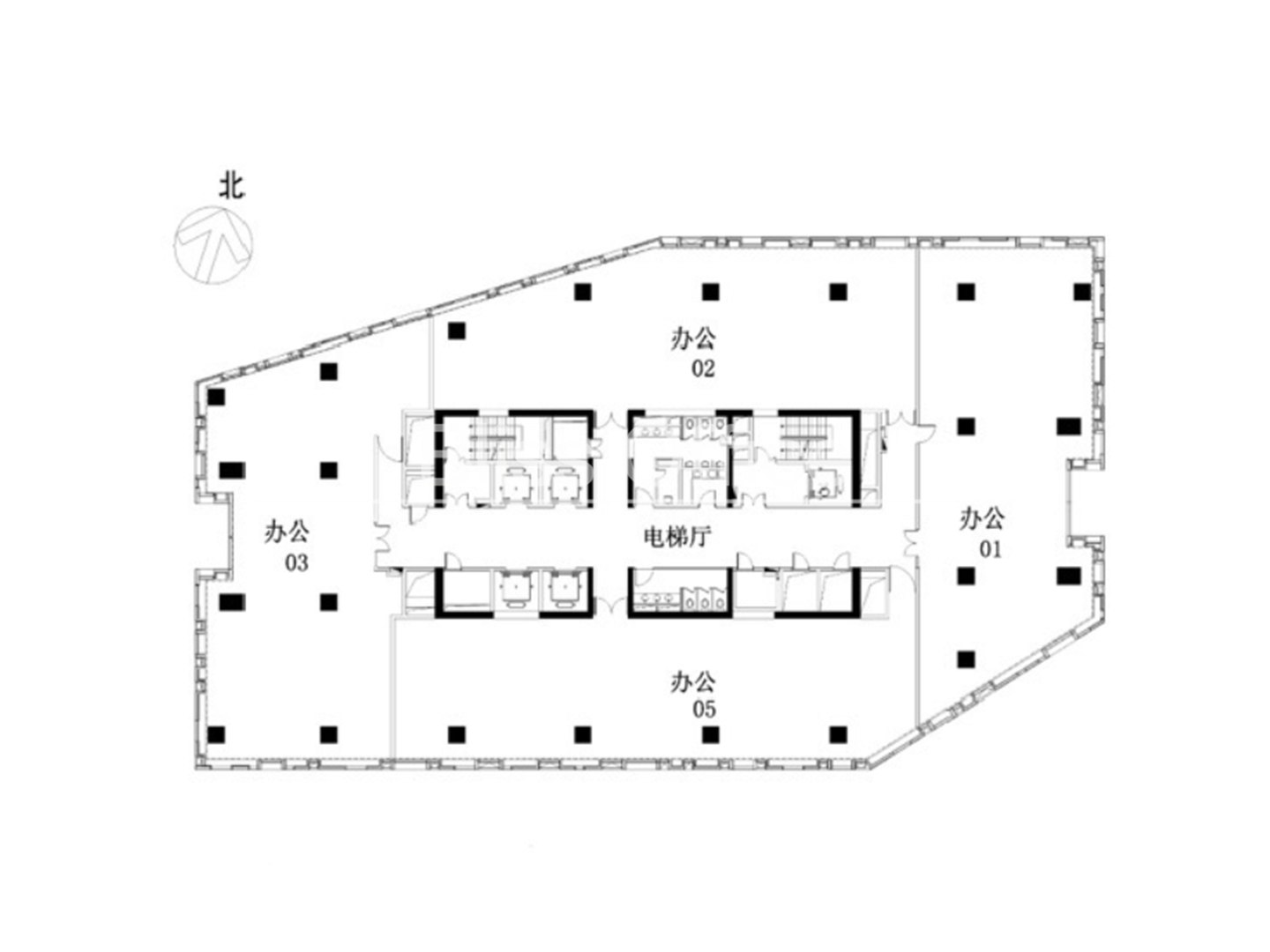
写字楼
1500方
31层
70%
2014年
北京锦融
28元/平米/月
3.5至4.2米
VAV中央空调系统
客梯9部,货梯1部
1600元/月
是
SOHO复兴广场位居上海内环的中心——繁华的淮海中路CBD商圈。项目占地20,084平方米,包含约7.2万平米的地上面积及6.5万平米的地下面积,规划总建筑面积为137,436平米,由一栋27层的办公楼和4座裙楼构成,集5A甲级办公空间和商业配套于一体。
SOHO复兴广场商务中心专区
周边配套
医疗
上海市徐汇区中心医院,上海交通大学医学院附属瑞金医院,瑞金医院卢湾分院-住院部,复旦大学附属华山医院,北京同仁堂黄浦大药房(新天地店),红房子妇产科医院黄浦院区-门诊楼,瑞金医院-门诊部,上海中医药大学附属曙光医院西院-肝科十八病区,上海交通大学医学院附属第九人民医院-南院,爱康国宾体检中心(西藏南路店) [2]
教育
科学会堂,上海交通大学医学院,上海音乐学院,上海市格致中学,上海市业余科技学院,上海交大医学院-西2教学楼,上海社会科学院(淮海中路总部),上海市光明中学,上海交通大学医学院东部-懿德楼,黄浦区卢湾三中心小学
购物
新天地时尚,中环广场,K11购物艺术中心,香港广场,Lady M(兴业路),新天地南里商场,无限极荟,湖滨道购物中心,力宝广场,I.T(兴业路店)
Public transit
卢 湾新天地 马当路388号

How To Commissin Bliss Office
