闵行其他
闵 行 -莲花路1555号
9号线-合川路、12号线-虹梅路


In Tenant Type
Building photos
Building introduction
写字楼
1200方
25 层
68%
2004年
上海华诚物业管理
17元/平/月
标准3.6米,净高2.6米
VRV分体式空调系统
客梯3,货梯1部
250
是
华一实业大厦,由上海华一实业公司投资建设,是智能化多功能综合性写字楼,于2004年5月投入使用。大厦位于上海市中心域区西南,内环线和外环线之间。东邻漕河泾新兴技术开发区,西通虹桥国际机场,北往虹桥经济技术开发区,南近锦江乐园莲花路地铁出口处。
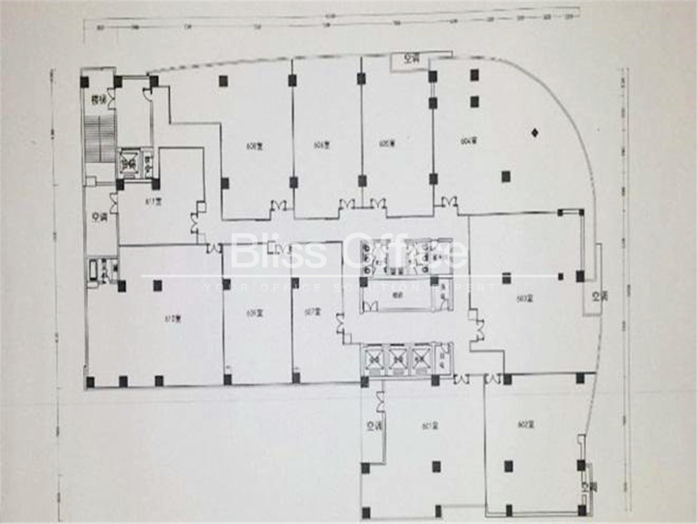
华一实业大厦户型图如下:

层高:净高2.6米
层数:25层
物业:上海华诚物业管理有限公司
物业费:17元/平米•月
车位约:250个
车位月租金:650元/位•月
空调:VRV分体式空调系统
独立电表,用时计量
空调开放时长:租户自行控制
电梯客梯:3部,货梯1部
网络:电信、联通、移动、长城、铁通
入驻企业有:美来和公司、上海康太服饰设计、上海科耐软件科技、上海能博士、上海真邦、上海骏马实业有限公司等
Public transit
闵 行 闵行其他莲花路1555号

How To Commissin Bliss Office
